Obnova občinske stavbe po uničujočih poplavah
V teh dneh smo začeli z obnovo dveh občinskih stavb, ki sta bili močno poškodovani v lanskih uničujočih poplavah. V nujni rekonstrukciji bo obnovljen sedež Občine Medvode na naslovu Cesta komandanta Staneta 12 ter sedež Režijskega obrata in prostori nevladnih organizacij na naslovu Cesta komandanta Staneta 14.
Občinska stavba je stara skoraj 100 let, gradnja je potekala v več obdobjih od leta 1930, z večjo prizidavo leta 1960 in nadzidavo leta 1996. Sosednja stavba je še starejša, saj je bila zgrajena leta 1920 z manjšimi posegi v kasnejših obdobjih. Pregled tega objekta po poplavah je pokazal, da bo treba porušiti večino sten in ga skoraj v celoti zgraditi na novo, na Cesti komandanta Staneta 12 pa je potrebna popolna prenova pritličja.
V času poplav je voda segala do višine 70 centimetrov nad nivojem pritličja oziroma 120 centimetrov nad nivojem terena, zato bomo izvedli več ukrepov za preprečevanje škode ob morebitnih novih poplavah. Poplavljena je bila sejna soba, sprejemna pisarna, krajevni urad, kotlovnica, prostori Režijskega obrata, Gasilske zveze Medvode in drugih zvez in društev.
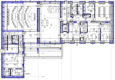
Kakšen bo prenovljen objekt?V prenovi stoletnih stavb, ki nista bili zgrajeni za namene, ki jim služita danes, bomo upoštevali vse sodobne smernice in zahteve za gradnjo tovrstnih javnih objektov. Tako nekoliko spreminjamo razporeditev prostorov, obe stavbi pa bomo na ravni pritličja povezali z novo gradnjo oziroma »medzidkom«.
V prenovljenem pritličju bo urejena velika sejna soba z avlo, prostori krajevnega urada, sprejemna pisarna, mala sejna soba in nekaj pisarn. V prvem nadstropju na Cesti komandanta Staneta 14 bodo urejene tri pisarne s skupnim prostorom, ki bodo namenjene občinskim zvezam društev. Skupaj obnova obsega 490 m2 površin. Zaradi pravil, ki veljajo za popoplavno sanacijo objektov, v pretežni meri ohranjamo obstoječe gabarite, vizualno pa sledimo dediščini dosedanjih objektov. Načrte za prenovo je pripravilo podjetje Obrat d. o. o.. Znamenito rdečo vrtnico, ki že desetletja krasi pročelje objekta na Cesti komandanta Staneta 14, bomo ohranili v sodelovanju s strokovnjakom Matjažem Mastnakom.
Prilagojeno poslovanje s strankami v času delMed prenovo bo Občinska uprava Občine Medvode še naprej poslovala v 1., 2. in 3. nadstropju, dostop za obiskovalce pa bo urejen pri zadnjem vhodu (s smeri Medvoškega loka). Trudili se bomo, da bo poslovanje s strankami v času prenove karseda nemoteno, vseeno pa vas prosimo, da čimveč storitev opravite elektronsko s pomočjo spletnih obrazcev ali elektronske pošte. Priporočamo, da se na sestanke najavljate po elektronski pošti ali telefonu. Prenova ne bo vplivala na upravne postopke, ki jih za občane zagotavlja Občina Medvode. Srečanja z večjimi skupinami in seje Občinskega sveta Občine Medvode bodo še naprej potekale v drugih javnih objektih. O morebitnih dodatnih prilagoditvah dostopnosti v času del bomo obveščali sproti.
V času del bo zmanjšano število parkirnih mest v okolici, zato vsem obiskovalcem Občine Medvode in Knjižnice Medvode priporočamo parkiranje ob Tržnici Medvode.
Krajevni urad Medvode, ki je del Upravne enote Ljubljana, bo do zaključka prenove zaprt. Postopke, za katere ne velja krajevna pristojnost (npr. urejanje osebnih dokumentov), lahko opravljate na vseh upravnih enotah po Sloveniji, postopke, za katere velja krajevna pristojnost, pa bodo še naprej zagotavljali na Upravni enoti Ljubljana. Upravna enota Ljubljana je poenostavila postopke prijave stalnega ali začasnega prebivališča, saj to zdaj lahko uredite tudi po pošti ali elektronski pošti. Vse informacije o poslovanju najdete na njihovi spletni strani.
Zahvaljujemo se vam za razumevanje v času del in se veselimo novih prostorov, ki bodo bolj dostopni in prijazni za vse uporabnike.
Finančno in tehnično zahteven zalogajIzmed vseh v poplavah poškodovanih objektov je to eden finančno zahtevnejših, saj pogodbena vrednost vseh del znaša 2.425.537,94 evra, dela pa bo izvedlo podjetje DIMING, inženiring in projektiranje d. o. o., ki je bilo izbrano z javnim naročilom. Strokovni nadzor bo izvajalo podjetje ROBGRAD d. o. o..
Ker pogodbeni znesek presega pridobljena sredstva, ki nam jih je kot predplačilo namenila država, bo to prvi projekt pri nas, ki bo financiran po novem postopku z neposredno umestitvijo v državni proračun. Projekt bo financiran s strani Republike Slovenije, Ministrstva za naravne vire in prostor skladno s potrdilom Službe vlade RS za obnovo po poplavah in plazovih, Državne tehnične pisarne, z julija letos in dopisa Ministrstva za naravne vire in prostor, ki smo ga prejeli avgusta. Pred začetkom del smo pridobili tudi vodno soglasje Direkcije za vode. Ker pri prenovi ne gre zgolj za vzpostavitev prvotnega stanja, ampak moramo zaradi pravil zagotoviti tudi opremo, ki je objekt prej ni imel (npr. dvigalo) bo vsa dela, ki se izvajajo dodatno, plačala Občina Medvode iz svojega proračuna.
Izvedba del bo zaradi hkratne uporabe objekta zahtevna, zato zaključek del pričakujemo novembra 2025 (podatek ažuriran septembra 2025).
Več o načrtovani obnovi
Objekt na Cesti komandanta Staneta 12 je energetsko in potresno neskladen z današnjimi standardi, prav tako ne zagotavlja univerzalne dostopnosti invalidom. Objekt se bo delno rekonstruiral, kar obsega celostno prenovo prostorov v pritličju, delno energetsko sanacijo fasadnega ovoja na ravni pritličja ter vgradnjo dvigala, ki povezuje vse etaže od pritličja do mansarde in omogoča dostopnost vsem obiskovalcem. V objekt se vgradi zaščita pred morebitnimi ponovnimi poplavami.
Objekt na Cesti komandanta Staneta 14 je energetsko in potresno neskladen z današnjimi standardi, zato se v celoti rekonstruira in energetsko sanira. Dozidal se bo s pritličnim objektom z ravno streho, ki poveže dosedanja objekta, kar bo omogočilo boljše funkcioniranje obeh objektov.
Dostop do objekta za pešce in nemotoriziran promet ter za intervencijska vozila je predviden prek vhodnega trga. S tega mesta se bo odstranilo parkirišče za službena vozila. Vhod v občinsko stavbo se bo prestavil na mesto, kjer se objekta stikata z novim objektom, pred vhodom pa bo nadstrešnica, ki bo pokrivala vhod v občinsko stavbo, vhod v krajevni urad, zunanje stopnice ter klančino. Površine bodo ozelenjene z grmovnicami.